Обяви За нас Контакти
Продава 3-СТАЕН
град София, Хаджи Димитър
258 999 €
506 558.01 лв.

(2 539 €, 4 965.85 лв./m2)
Не се начислява ДДС
История на цената
Публикувана в 17:46 на 29 март, 2026 год.
Обявата е посетена 129 пъти.
Площ:
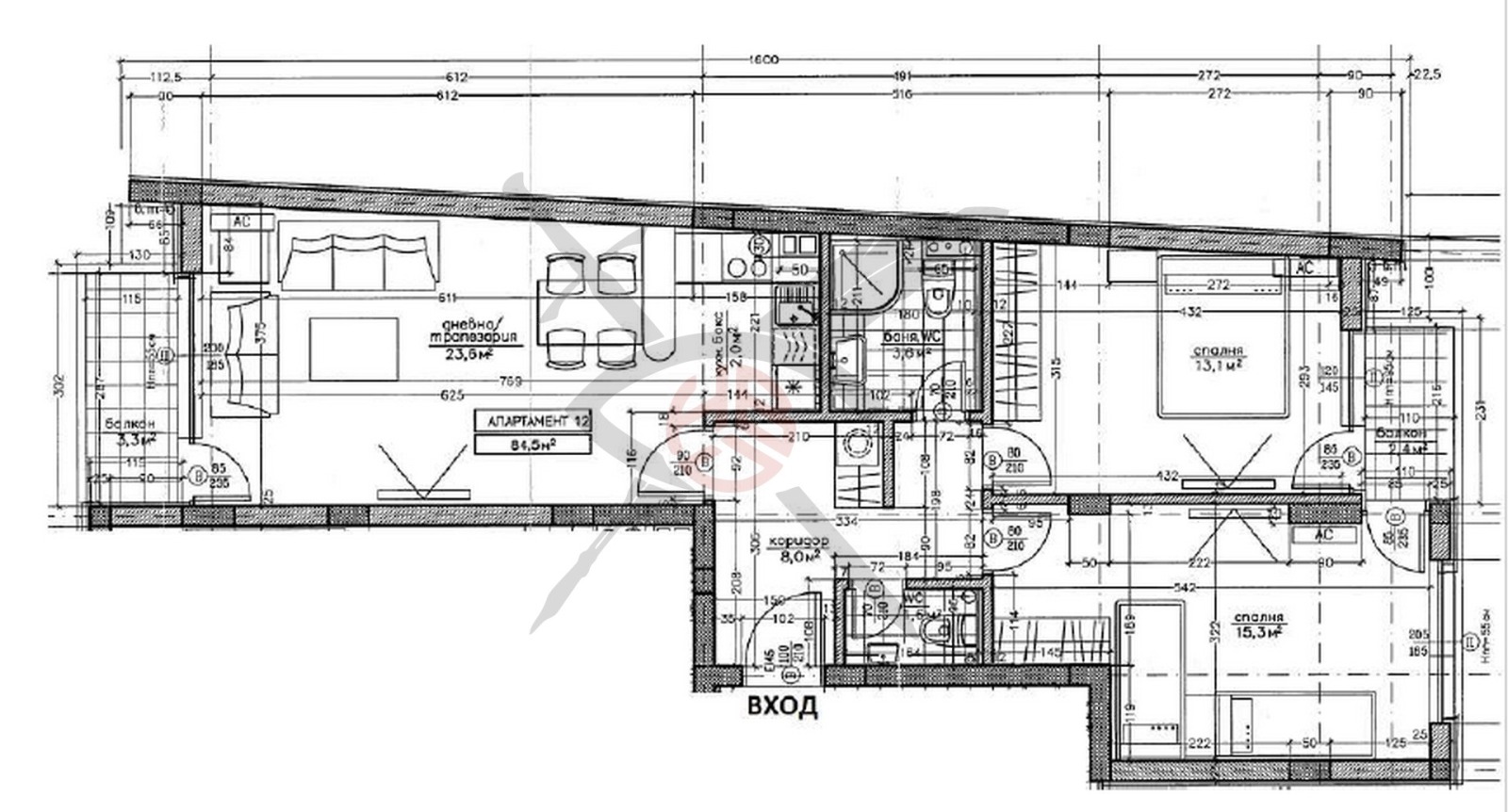
102 m2
Етаж:
4-ти от 6
Строителство:
Тухла, Ще бъде въведен в експлоатация 2028 г.

Описание на имота:


Компания `ЕКС` представя на Вашето внимание тристаен апартамент в жк. Хаджи Димитър.

МЕСТОПОЛОЖЕНИЕ: Намира се в близост до детска градина, училище и на пешеходно разстояние на метростанция Хаджи Димитър.

СТРОИТЕЛСТВО: Апартаментът е ситуиран на 4-ти етаж в тухлена сграда.

РАЗПРЕДЕЛЕНИЕ: Жилището разполага с площ от 102 кв.м. разпределен във входно антре, хол с кухненска част, две спални, баня с тоалетна, отделна тоалетна и две тераси.

ОСОБЕНОСТИ: Към апартамента има и подземен склад(мазе).

С възможност за покупка и на двоен подземен гараж.

Заповядайте да Ви го покажем. Използвайки нашите услуги Вие ще превърнете закупуването на новия си дом в едно приятно изживяване, ще получите персонален консултант, съдействие при кандидатстване за кредит от всички банки в България, интериорни дизайнери и екип, който да се погрижи за нужните документи по Вашата сделка. На Ваше разположение сме всеки ден, от понеделник до неделя от 09:00 до 20:00ч. Възползвайте се от безплатна консултация в наш офис, където ще ви спестим време и ще ви запознаем с всички актуални имоти в България, отговарящи на Вашето търсене. Свържете се с нас на 0887 77 99 90 или на 0886 12 12 57 и цитирайте кода към имота: 102236
Особености
Тухла
Асансьор
С паркинг
Интернет връзка
Видео наблюдение
Контрол на достъпа
Охрана
Саниран
За контакт:
0887 77 99 90
Агенция:
ЕКС НВД ООД
0885191991
ЕКС НВД ООД logo
Медал за прослужено време
В imot.bg от 2014 г.
exnvd.imot.bg
Адрес:
област София, гр. София, ул. Сребърна 14
http://xnvd.bg
ИЗПРАТИ ЗАПИТВАНЕ
ИЗПРАТИ ЗАПИТВАНЕТО

Продава 3-СТАЕН
град София, Хаджи Димитър
Обява: 1c177479556449720

258 999 €
506 558.01 лв.
История на цената
(2 539 €, 4 965.85 лв./m2)

Не се начислява ДДС
ЗАПАЗИ ОБЯВАТА

Местоположение: град София, Хаджи Димитър

Допълнителни данни за имотите в района и сравнение с други райони

Покажи

Период

и 3 месеца

* Средните цени са определени чрез медианна стойност