Обяви За нас Контакти
Продава МНОГОСТАЕН
град София, Кръстова вада
350 000 €
684 540.50 лв.

(2 574 €, 5 034.31 лв./m2)
Не се начислява ДДС
История на цената
Коригирана в 19:17 на 3 октомври, 2025 год.
Обявата е посетена 2147 пъти.
Площ:
136 m2
Етаж:
5-ти от 6
Строителство:
Тухла, Не е въведен в експлоатация

Описание на имота:


Компания `ЕКС` представя на Вашето внимание многостаен апартамент в жк. Кръстова вада.

МЕСТОПОЛОЖЕНИЕ: Отлично местоположение в престижен, комуникативен и в същото време спокоен район с директен достъп до основни пътни артерии.

СТРОИТЕЛСТВО: Апартаментът е ситуиран на 5-ти етаж в сграда ново строителство с очакван акт 16 през лятото на 2026г.

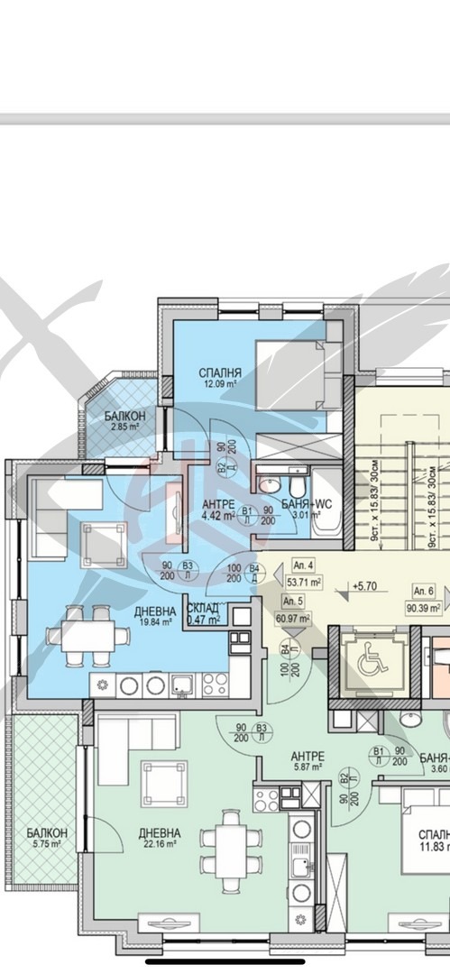
РАЗПРЕДЕЛЕНИЕ: Жилището разполага с площ от 136 кв.м., разпределена във входно антре, голям хол с трапезария и кухненски бокс, три спални, две бани с тоалетни, два балкона и една тераса.

СЪСТОЯНИЕ: НА ШПАКЛОВКА И ЗАМАЗКА.

Заповядайте да Ви го покажем. Използвайки нашите услуги, Вие ще превърнете закупуването на новия си дом в едно приятно изживяване, ще получите персонален консултант, съдействие при кандидатстване за кредит от всички банки в България, интериорни дизайнери и екип, който да се погрижи за нужните документи по Вашата сделка. На Ваше разположение сме всеки ден, от понеделник до неделя от 09:00 до 20:00ч. Възползвайте се от безплатна консултация в наш офис, където ще ви спестим време и ще ви запознаем с всички актуални имоти в България, отговарящи на Вашето търсене. Свържете се с нас на 0887 77 99 90 или на 0886 12 12 57 и цитирайте кода към имота:76392
Виж всички обяви в exnvd.bazar.bg или тук
Особености
Тухла
Асансьор
За контакт:
0887 77 99 90
Агенция:
ЕКС НВД ООД
0885191991
ЕКС НВД ООД logo
Медал за прослужено време
В imot.bg от 2014 г.
exnvd.imot.bg
Адрес:
област София, гр. София, ул. Сребърна 14
http://xnvd.bg
ИЗПРАТИ ЗАПИТВАНЕ
ИЗПРАТИ ЗАПИТВАНЕТО

Продава МНОГОСТАЕН
град София, Кръстова вада
Обява: 1e173893355009958

350 000 €
684 540.50 лв.
История на цената
(2 574 €, 5 034.31 лв./m2)

Не се начислява ДДС
ЗАПАЗИ ОБЯВАТА

Местоположение: град София, Кръстова вада

Допълнителни данни за имотите в района и сравнение с други райони: Търсене в АРХИВ 2013 - 2025 г.











Добави/редактирай
вид имот и район
*Средните цени са определени чрез медиана стойност.